有限会社中山建材店様 新社屋

コンセプト
大分県大分市の有限会社中山建材店様より、新社屋設立にともなう備品納入のご依頼をいただきました。建築資材の販売・施工を中核事業とされる企業様ならではの、木の質感を活かしたオフィス空間に調和するレイアウトプランを提案させていただきました。
インテリアは、木目が活きるように黒を基調にコーディネートし、チェアの張地をカラフルにすることで遊び心を取り入れました。いくつかあるミーティング室の内装はあえて統一せず、家具や色使い、レイアウトに変化を持たせることで、用途に応じた空間演出が可能となります。また、適度に仕切られたワーキングソファを窓向きに配置し、自席以外でも快適にソロワークをしていただけるスペースを設けました。
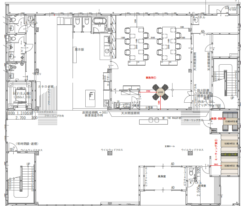
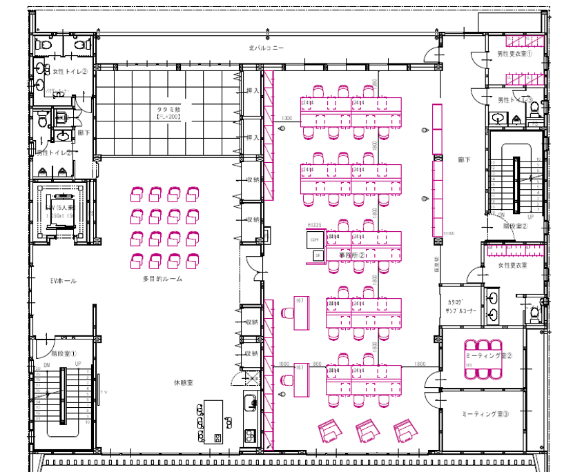
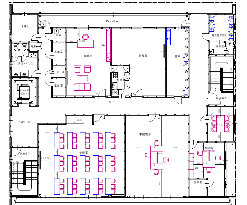
パース・レイアウト図
内観・外観













物件概要
物件住所
大分県大分市
納入年月
2025年7月
主な納入製品
デスク、チェア、キャビネット、ソファ、テーブル 他






